管板加工|管板加工厂家|折流板钻孔加工厂[上海镍基重工]

新闻中心Company Photos
联系我们Contact Us
公司名称:上海镍基重工有限公司
公司地址:常州市武进区潘家工业园建设路22号
联 系 人:诸葛林健
电话号码:021-50857494
手机号码:13301875123
公司传真:021-50857595
电子邮箱:254249513@qq.com

行业新闻

您现在的位置:首页 > 新闻中心 > 行业新闻
管板价格管板焊接玻璃钻孔加工合金钢管板优点介绍
作者:管板 来源: http://www.ni-base.com 发布时间:2015-06-15 09:03:52
0

合金钢管优点介绍

 
    合金管是钢管按照生产用料(也就是材质)来定义的,顾名思义就是合金做的管子;而无缝管是钢管按照生产工艺(有缝无缝)来定义的,区别于无缝管的就是有缝管,包括直缝焊管和螺旋管。
 
    钢管可以100%回收,符合环保、节能、节约资源的国家战略,国家政策鼓励扩大高压合金管的应用领域。目前我国合金管消费量占钢材总量的比重仅为发达国家的一半,合金管使用领域扩大为行业发展提供更广阔的空间。根据中国特钢协会合金管分会专家组的研究,未来我国高压合金管长材的需求年均增长可达10-12%。
 管板,管板价格
    合金管与无缝管的关系与有区别 合金管是钢管按照生产用料(也就是材质)来定义的,顾名思义就是合金做的管子;而无缝管是钢管按照生产工艺(有缝无缝)来定义的,区别于无缝管的就是有缝管,包括直缝焊管和螺旋管。
 
    合金管的材质大致有:16-50Mn、27SiMn、40Cr、12-42CrMo 16Mn 12Cr1MoV T91 27SiMn 30CrMo 15CrMo 20G Cr9Mo 10CrMo910 15Mo3 15CrMoV 35CrMoV 45CrMo 、15CrMoG、12CrMoV、45Cr、50Cr、45CrNiMo等。
 
    管板自动焊、焊缝美观、焊角≧1.4管壁厚、拉脱试验均断于管壁  引言:不论普通换热器,还是螺纹锁紧环换热器,管板与管头焊接大部分采用手工氩弧焊,焊缝外观质量差,易产生气孔,水压试验一次合格率低。
 
    换热器发生泄漏问题,50%左右是管头角焊缝出现问题,随着石化行业的发展,炼厂对压力容器质量要求越来越高,对管头焊接提出更高要求,明确管头焊接使用自动焊,为此我公司引进4台昆山焊华恒公司和江中神管板焊机。为此我们针对不同材料、不同直径、不同坡口形式开展试验工作,并在90年代成功地运用到各种冷换设备上包括加氢换热器、高压螺纹锁紧环换热器,并经过10多年在各种恶劣介质中考验,得到用户的全面的肯定,我公司现已全面推广自动管板。
 
    一不同坡口形式
 
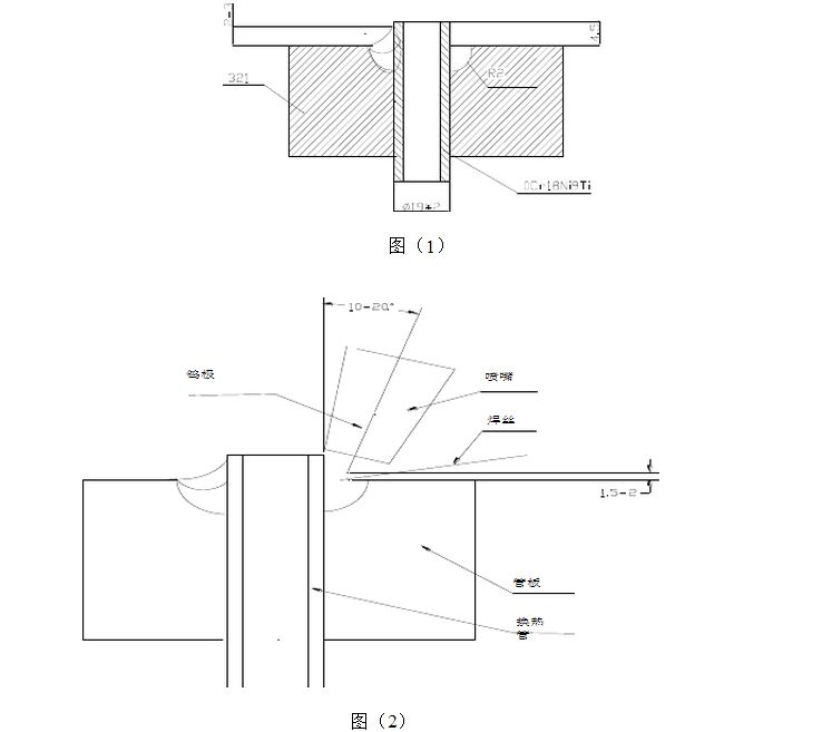
    1. 焊接管板U型坡口  管板U型坡口,坡口深根部熔合好焊缝填充金属多,要去机头调整范围广操做灵活。主要解决的优点是U型坡口根部能容易熔合良好,接头型式如图
 
    施焊时焊枪与换热管角度如图(2),焊丝据钨极2-.3mm,焊丝位置处于钨极正下方,焊丝距离管板坡口底部2-2.5 mm。  2. 管板V型坡口,  管板V型坡口,坡口深度与是U型坡口比较浅,根部熔合比较困难,但焊缝填充金属少。施
 管板,管板价格
    焊时焊枪与换热管角度如图(3),焊丝距离钨极2-3mm,焊丝位置处于钨极正下方,焊丝距离管板坡口底部2-3 mm。
 
    二焊接时注意事项
 
    1. 提前预送气时间,滞后停气时间,根据不同材质时间是不同的,滞后停气具体时间见试验参数。
 
    2. 予熔时间根据管板厚度及换热管直径和壁厚决定,管板厚、换热管直径和管壁厚越大,予熔时间越长反之则短。
 
    3.起弧位置一般在11点钟,起弧收弧在12钟。也可随意起弧但不利于大生产。
 
    4.第一层焊速比第二层快一些,避免烧穿管头。 三焊接试验参数
 
 
 
 
 
 
 
0